خانهای کوچک و دو میزانسن در یک اتاقبازگشت به فهرست پروژه ها
-
وقتی ما من و دیوار، هر دو در حرکتیم
اتاقی در رفتوبرگشت
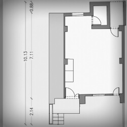
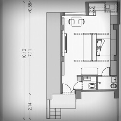
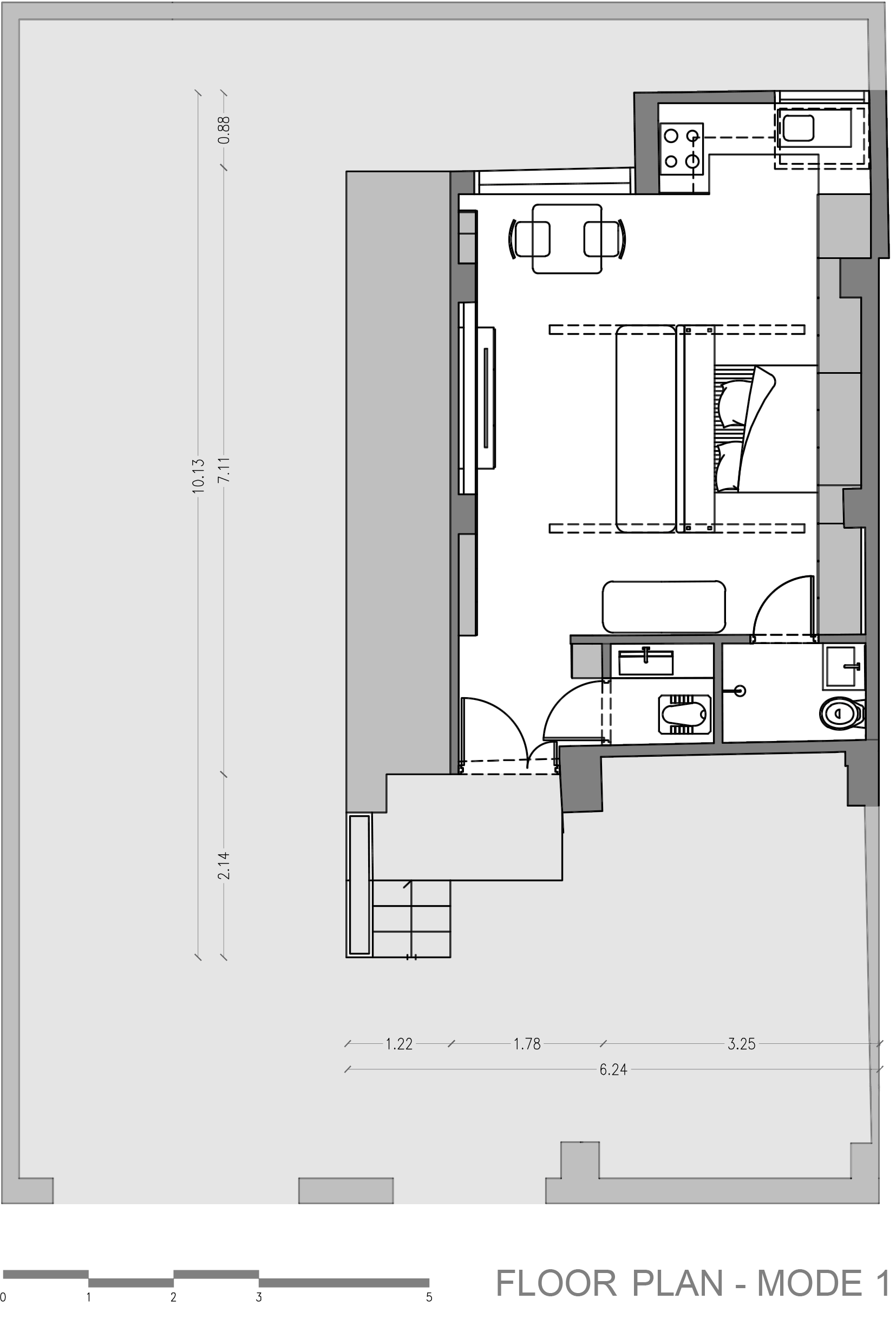
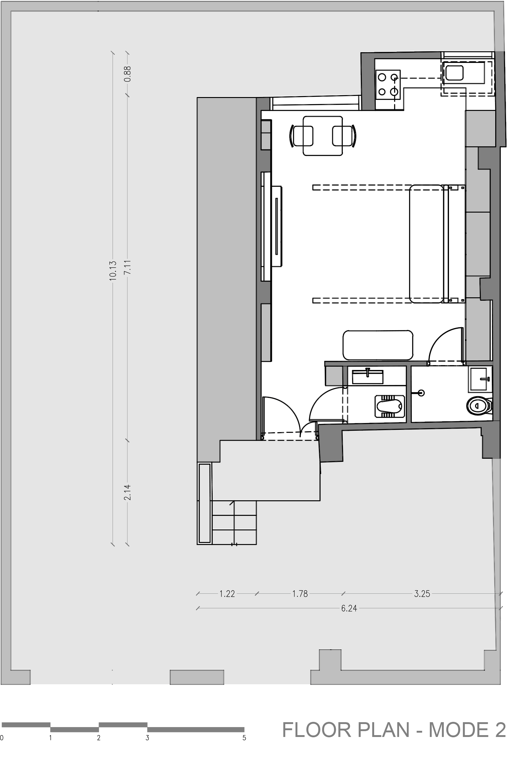
خانه در دو میزانسنگاهی متراژ خانه آنقدر هست که بهراحتی دو خوابه طراحیاش میکنیم. گاهی کمی کمتر است و به یکخوابه بسنده میکنیم. اما وقتهایی هم هست که متراژ آنقدر کم است که حتی اگر خانه را یکخوابه هم در نظر بگیریم، نه اتاق خواب متناسبی خواهیم داشت و نه نشیمنی قابل استفاده.
ولی واقعیت این است که—لااقل در خانهای با این ابعاد—خیلی کم پیش میآید که کسی همزمان هم در حال خوابیدن باشد و هم بخواهد از نشیمن استفاده کند. شبها که وقت خواب است، دیگر نیازی به نشیمن نیست. روزهایی هم که مهمان داریم، معمولاً اتاق خواب بلااستفاده میماند.
از همینجا ایدهی پروژه شکل گرفت:
اگر اتاق خواب و نشیمن، متراژ ثابتی نداشتند چه میشد؟
اگر میشد بسته به نیاز، فضا را کموزیاد کرد؟برای اجرای این ایده، یک شاسی فلزی ساختیم، چند چرخ زیر آن قرار دادیم، و یک ریل سقفی با ناودانی نصب کردیم تا دیواری متحرک بسازیم. مبل چرخدار را به یک مبلساز سفارش دادیم و یک تختخواب تاشو هم تهیه کردیم تا فضای داخلی، قابلیت تغییر در لحظه داشته باشد. به این ترتیب، با وجود محدودیت متراژ، موفق شدیم حداقلهای لازم برای یک خانهی واقعی را فراهم کنیم.
در بخش آشپزخانه نیز با محدودیت دیگری مواجه بودیم: بهدلیل ضوابط شهرداری، امکان اجرای سقف بتنی یا بنایی وجود نداشت. بنابراین، از یک سازهی سبک استفاده کردیم و سقف را با قوطی آهنی و طلق پلیکربنات اجرا کردیم؛ هم سبک، هم روشن، هم مقرونبهصرفه.
-
-
-
-
-
مرحله صفر : وضعیت اولیه
این واحد در طبقه همکف یک اپارتمان مسکونی در کنار پارکینگ و انبار قرار گرفته بود
-
مرحله اول : جانمایی فضاها
سرویس بهداشتی و حمام به بخشی که نورگیری نداشت منتقلش و آشپزخانه در گوشه ای که قناص بود تعبیه شد
-
مرحله دوم :دیواره ای متحرک که بر اساس نیاز میکند
دیواره متحرک که امکان دهد که حالت های نشیمن و اتاق خواب قابل تغییر باشد. دو میزانسن در یک اتاق
-
مرحله سوم : وضعیت نهایی
فضای کار، کمدها، رختن وروردی و... در هماهنگی با همدیگر و آن بخش متحرک ایجاد شدند و در جای خود قرار گرفتند





-
-
-
















